| Hậu Giang chi 50 tỷ đồng xây dựng khu công nghệ số, thúc đẩy đổi mới sáng tạoKhu công nghệ cao thu hút nhiều tập đoàn uy tínTP. Hồ Chí Minh tiên phong cụ thể hóa Nghị quyết 57 |
Ngày 9/4, Ủy ban Nhân dân tỉnh Hậu Giang ban hành Kế hoạch số 77/KH-UBND về việc tổ chức thực hiện đầu tư xây dựng Dự án Khu công nghệ số tỉnh Hậu Giang, giai đoạn 2.
Theo nội dung kế hoạch, tỉnh Hậu Giang đặt mục tiêu khởi công dự án trước ngày 30/6/2025. Kế hoạch nêu rõ, đây là dự án trọng điểm của tỉnh Hậu Giang, có vai trò và tầm quan trọng đối với sự phát triển của tỉnh trong tương lai.
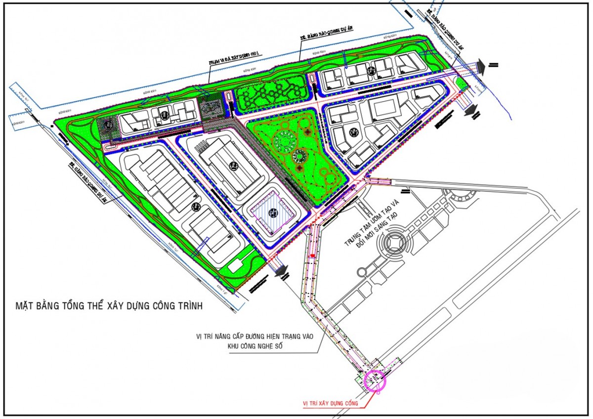
![]() |
| Mặt bằng tổng thể Dự án Khu công nghệ số tỉnh Hậu Giang giai đoạn 2. Ảnh: Báo Hậu Giang |
Để đảm bảo tiến độ cũng như chất lượng triển khai, UBND tỉnh Hậu Giang đã phân công rõ ràng trách nhiệm cho từng sở, ngành và đơn vị liên quan.
Theo đó, Sở Tài chính giữ vai trò chủ trì trong việc phối hợp với các sở, ban, ngành, UBND thành phố Vị Thanh và chủ đầu tư để triển khai và thực hiện thẩm định đề xuất chủ trương đầu tư dự án, ra kế hoạch lựa chọn nhà thầu và các nội dung liên quan, sao cho hoàn thành đúng nội dung, nhiệm vụ và thời gian theo quy định.
Trong khi đó, Sở Xây dựng tỉnh được giao nhiệm vụ chủ trì thẩm định hồ sơ thiết kế sau thiết kế cơ sở và các nội dung liên quan cùng các các ban, ngành tỉnh, UBND thành phố Vị Thanh, chủ đầu tư và các đơn vị có liên quan.
Đặc biệt, Ban Quản lý dự án đầu tư xây dựng công trình dân dụng và công nghiệp tỉnh Hậu Giang được giao nhiệm vụ tổ chức điều phối các bước thực hiện, đảm bảo cập nhật tiến độ, báo cáo định kỳ hàng tuần, hàng tháng cho Thường trực UBND tỉnh để kịp thời theo dõi, chỉ đạo. Đồng thời, đơn vị này còn có trách nhiệm chủ động rà soát, phát hiện và đề xuất giải pháp tháo gỡ các khó khăn, vướng mắc phát sinh trong quá trình triển khai dự án, nhằm bảo đảm mục tiêu khởi công đúng hạn.
Bên cạnh đó, các đơn vị liên quan như Sở Khoa học và Công nghệ, UBND TP. Vị Thanh, Công ty Điện lực Hậu Giang, Công ty Cổ phần Cấp thoát nước - Công trình đô thị Hậu Giang... cũng được huy động phối hợp theo chức năng, nhiệm vụ để bảo đảm tiến độ.
UBND tỉnh Hậu Giang yêu cầu trong quá trình triển khai, nếu xuất hiện những khó khăn vượt thẩm quyền, các sở, ban ngành và đơn vị liên quan phải chủ động báo cáo để Thường trực UBND tỉnh xem xét, chỉ đạo kịp thời, tránh để ảnh hưởng đến tiến độ chung.
Theo UBND tỉnh Hậu Giang, dự án Khu công nghệ số giai đoạn 2 có diện tích gần 22 ha, tọa lạc tại xã Vị Tân (thuộc thành phố Vị Thanh, tỉnh Hậu Giang), với tổng mức đầu tư dự kiến là 400 tỷ đồng. Công trình gồm các hạng mục: san lấp mặt bằng, đường giao thông, vỉa hè, cây xanh, cấp thoát nước, phòng cháy chữa cháy, cấp điện chiếu sáng công cộng, đường ống, thông tin liên lạc, cổng vào Khu công nghệ số, công viên và các hạng mục phụ trợ... |






