Hưng Thịnh Cát Tường Town “Đất Lành - Sống Xanh”
Bằng những hành động, việc làm thiết thực, hiệu quả, nhiều doanh nghiệp đã hỗ trợ Long An triển khai Chương trình Mục tiêu quốc gia xây dựng nông thôn mới cả về vật chất cũng như đầu tư trực tiếp về nông thôn. Hưng Thịnh Cát Tường là một trong số đó.
![]() |
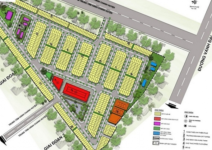
Hưng Thịnh Cát Tường Town là đơn vị được Long An phê chuẩn chủ trương khu dân cư phức hợp từ đầu năm 2018, tại xã Đức Lập Thượng, huyện Đức Hòa, tỉnh Long An, có quy mô quy hoạch diện tích trên 30 ha; mật độ xây dựng khoảng 40%, còn lại 60% dành cho trường học, trung tâm y tế, trung tâm dịch vụ thương mại, công viên cây xanh và các công trình công cộng khác ...
Dự án có vị trí thuận lợi, mặt tiền giáp tỉnh lộ 10, chỉ mất khoảng 25 phút di chuyển đến trung tâm TP. Hồ Chí Minh hoặc 15 phút về hướng Tây Sài Gòn, khoảng 10 phút để đến các khu công nghiệp Hoàng Gia, Xuyên Á và nối liền trục đường tuyến thẳng giáp biên giới…
Bên cạnh đó, dự án có các tiện ích ngoại khu như hệ thống chợ, bệnh viện, trường học, ngân hàng, khu du lịch, nhà hàng, khu vui chơi nằm trong bán kính gần 2km.
![]() |
| Phối cảnh dự án Hưng Thịnh Cát Tường Town |
Theo kế hoạch, nhà đầu tư sẽ dành khoảng trên 30 triệu USD cho việc phát triển xây dựng khu dân cư phức hợp này. Hưng Thịnh Cát Tường Town sẽ được xây dựng trên nền kiến trúc châu Âu cơ bản. Dự án có tính đặc trưng về kiến trúc đất nền và nhà phố liền kề kiểu mẫu theo “kiến trúc xanh”.
Kết nối với chương trình NTM của tỉnh nhà, chủ đầu tư sẽ chọn điểm nhấn kiến trúc xanh cho toàn phân khu dự án. Đây cũng là tiêu chí và ý tưởng được thể hiện chi tiết và cụ thể trên bảng thiết kế ngay từ thời điểm lần đầu lập kế hoạch xây dựng dự án Hưng Thịnh Cát Tường Town.
Thiết lập tính pháp lý hợp pháp
Định hướng cùng kế hoạch phát triển nhà ở xã hội (NOXH) của Sở Xây dựng TP. Hồ Chí Minh, từ nay đến năm 2020 là chia sẻ nhu cầu nhà ở của người dân tại các khu vực vệ tinh thuộc các tỉnh, thành phố, quận, huyện vành đai của TP. Hồ Chí Minh.
![]() |
Hưng Thịnh Cát Tường không những quan tâm phát triển dự án đất nền theo nhu cầu người tiêu dùng mà còn đặc biệt quan tâm KDC kiến trúc sống xanh để đáp ứng kịp thời nhu cầu thiết yếu “sống sạch, sống xanh” của người tiêu dùng theo nhiều phân khúc khác nhau, từ người có thu nhập thấp đến các nhà đầu tư BĐS lẻ và người có nhu cầu nhà ở thật sự tầng phân khúc cao hơn.
Trong 5 năm trở lại đây, Hiệp Hội bất động sản TP. Hồ Chí Minh (HoREA) liên tục vận động và hỗ trợ các doanh nghiệp BĐS cung cấp sản phẩm nhà ở giá thấp cho đối tượng thu nhập thấp. Tuy nhiên, để giải quyết vấn đề căn cơ và mang tính bền vững, các giải pháp của thành phố cần được hướng đến tất cả thành phần dân cư.
Để đảm bảo tính pháp lý cao trong giao dịch BĐS, chủ đầu tư hoạch định 12 phiên giao dịch đối với người tiêu dùng. Hiểu được sự khát khao sở hữu nhà của người dân có thu nhập thấp, Chủ đầu tư chủ động đưa ra tiêu chí trả góp đối với đối tượng công nhân có thu nhập thấp và thật sự muốn an cư lập nghiệp tại đây.
Cụ thể, khi mua đất nền dự án Hưng Thịnh Cát Tường, mọi khách hàng được ưu tiên trả góp 50% không lãi suất trên tổng giá trị giao dịch mua bán trong 12 tháng. Thời gian chủ đầu tư giao đất cho cư dân xây dựng tối đa là 24 tháng và thời gian dao động là 60 ngày so với cam kết theo hợp đồng, nếu có.
Dự kiến dự án đất nền, nhà ở Hưng Thịnh Cát Tường sau khi hoàn thành thủ tục pháp lý cơ bản sẽ tiếp tục giao dịch giai đoạn hai được điều chỉnh vào quý I/2019 (trong 12 giai đoạn mở bán).
![]() |
Theo ông Trần Văn Tuấn, Giám đốc dự án Hưng Thịnh Cát Tường, định hướng đến năm 2020 sẽ đa dạng phân khúc khách hàng, từ bình dân đến cao cấp để người tiêu dùng có nhiều sự lựa chọn nhưng vẫn theo kiến trúc sống xanh cho toàn khu vực dự án.
Chủ đầu tư sẽ chọn phát triển trọng tâm chỉnh trang phân khu theo từng hạng mục chi tiết đã được cơ quan có thẩm quyền phê duyệt như: vị trí nguồn nước sạch, đường xá, hệ thống ngầm, nổi trong xây dựng cơ bản chi tiết cơ sở hạ tầng, hệ thống cống, hệ thống điện, nước sinh hoạt đặc trưng… Đồng thời phân vùng quy hoạch theo từng kiến trúc phân khu và theo tiêu chí đồng bộ cơ sở hạ tầng KDC kiểu mẫu đô thị mới.
Đặc biệt, sự ủng hộ của tỉnh nhà, chính quyền huyện, xã là cần thiết trong việc thúc đẩy phát triển kinh tế nước nhà, giải quyết việc làm cho người lao động, giải quyết chỗ ở cho nhiều người dân mong muốn an cư lạc nghiệp tại Long An. Được vậy, doanh nghiệp sẽ cùng gánh vác, giải quyết đời sống xanh, không gian xanh trong sự mong đợi của người dân.
Theo kế hoạch, sau giai đoạn II của dự án, các công trình kiến trúc, cơ sở hạ tầng, công trình công cộng sẽ sớm hoàn thành theo tiến độ dự án để cư dân thoải mái, yên tâm “an cư, lạc nghiệp”, đồng thời sớm hoàn tất quyền sử dụng đất theo thời gian cam kết của chủ đầu tư.
Ông Tuấn tin tưởng sự hỗ trợ “kịp thời”, khách quan từ chính quyền địa phương đã góp phần không nhỏ trong việc giải quyết “nguồn sống xanh” của người dân. Dự án phát triển và được hình thành như mong muốn của chủ đầu tư và người tiêu dùng sẽ giải quyết trên 20% nhu cầu nhà ở của dân nhập cư và loại bỏ mô hình chợ tự phát tại các khu lân cận trong tương lai gần.
| Như vậy, ngoài dự án đất nền Hưng Thịnh Cát Tường, Phúc Khang, Hồng Đạt, Đất Xanh, Đất Lành Long An, Phú Mỹ Kỳ, Homeland Gold, Green peal, Golden land… có sự định hướng và phát triển đồng bộ theo cung - cầu nhà ở từ phân khúc người thu nhập thấp đến phân khúc khách hàng cao hơn trên các dự án… Từ đây góp phần không nhỏ trong việc định hướng phát triển đô thị đa trung tâm, mang tính vùng không gian đô thị TP. Hồ Chí Minh. |








